área de breadcrumb (partilhada)
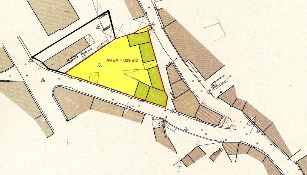
Câmara recebe doação do Industrial Joaquim Cruz no Centro de Assequins
área de conteúdos (não partilhada)área de menu central (partilhada)
Conteúdo atualizado em3 de agosto de 2018às 12:14
